Skip To Content

393 N Denver Ave

Loveland, CO 80537
  • $14
  • STATUS: Closed
  • ON SITE: 318 Days
  • MLS #: 1025381
Sold - 09/09/2025
$14
SOLD - 09/09/2025
  • 0
    BEDS
  • 0.34
    ACRES
  • 0
    BATHS
  • 0
    1/2 BATHS
Type:
Commercial-Lease
Built:
2006
County:

School Ratings & Info

Description

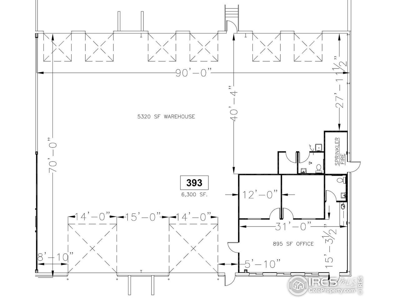
Industrial office/warehouse for Lease. This unit offers6,300 SF with an office space containing two private offices, an open reception area, a wet bar, and a half bath; The warehouse has a half bath, a deep wash sink, and ample storage/workspace, with 2-14' x 14' grade-level overhead doors, 6-8' x 8', a 3' exterior pedestrian door,110/220/3-Phase power, and a 16'-25' ceiling. Total Monthly Rent is $11,500.00, plus utilities (gas, electric, internet, phone, and internal janitorial). The Owners' Association covers trash, snow removal, landscaping, and exterior maintenance (roof leaks, etc.).



© 2025 Information and Real Estate Services, LLC. IDX information is provided exclusively for consumers' personal, non-commercial use and may not be used for any purpose other than to identify prospective properties consumers may be interested in purchasing. Information is deemed reliable but is not guaranteed accurate by the MLS or Sears Real Estate. Data last updated: 2025-12-14T22:43:10.34.

Information source: Information and Real Estate Services, LLC. Provided for limited non-commercial use only under IRES Rules © Copyright IRES.
www.searsrealestate.com/homes/159850088
Print Image

393 N Denver Ave Loveland, CO 80537

  • Price: $14
  • Status: Closed
  • On Site: 318 Days
  • Updated: 68 min ago
  • MLS #: 1025381
0
Beds
0
Baths
0
½ Baths
0.34
Acres
2006
Built
Neighborhood:
Denver Avenue Commercial Park
County:
Larimer
Area:
Loveland/Berthoud
Property Description
Industrial office/warehouse for Lease. This unit offers6,300 SF with an office space containing two private offices, an open reception area, a wet bar, and a half bath; The warehouse has a half bath, a deep wash sink, and ample storage/workspace, with 2-14' x 14' grade-level overhead doors, 6-8' x 8', a 3' exterior pedestrian door,110/220/3-Phase power, and a 16'-25' ceiling. Total Monthly Rent is $11,500.00, plus utilities (gas, electric, internet, phone, and internal janitorial). The Owners' Association covers trash, snow removal, landscaping, and exterior maintenance (roof leaks, etc.).
Exterior Features

Construction Materials Metal SidingMetal/FrameWall: Metal/FrameConcrete Horse YN No Lot Features CurbsGuttersSidewalksWithin City Limits Parking Features Common Road Frontage Type Priv Rd up to County Standards Road Surface Type PavedAsphalt Roof Metal Spa YN No View City Waterfront YN No

Interior Features

Accessibility Features Low CarpetNo Stairs Basement None Building Area Total 6300 Building Features Loading: Drive-inLoading: Dock HighLoading: Drive-in overhead doors Cooling Central Air Cooling YN Yes Flooring Carpet Heating Radiator Heating YN Yes Interior Features Ceiling: 16-20 Feet Living Area Source Plans

Property Features

Association YN No Business Type Incorporated AreaWarehouseVariety Ditches Active YN No Electric ElectricSeparate Meter Electricity3-Phase ElectricCity of Lvld Gas Natural GasSeparate Meter GasXcel Energy Has Association Fee No Has Association2 Fee No Has Improvements No Has Water Rights No Listing Sub Status None Locale Loveland New Construction YN No Property Condition Not NewPreviously Owned Property Sub Type Lease: Office/Industrial/Retail Senior Community YN No Sewer City Sewer Special Listing Conditions Private OwnerLicensed Owner Tenant Pays DepositAll Operating Costs (used alone) Utilities Natural Gas AvailableElectricity Available Water Source City WaterCity of Lvld Zoning I

Listing information © 2025 Information and Real Estate Services
Listing provided courtesy of Craig C Hau of Group Harmony: 9702220077.



© 2025 Information and Real Estate Services, LLC. IDX information is provided exclusively for consumers' personal, non-commercial use and may not be used for any purpose other than to identify prospective properties consumers may be interested in purchasing. Information is deemed reliable but is not guaranteed accurate by the MLS or Sears Real Estate. Data last updated: 2025-12-14T22:43:10.34.

Information source: Information and Real Estate Services, LLC. Provided for limited non-commercial use only under IRES Rules © Copyright IRES.
 
https://bt-photos.global.ssl.fastly.net/ires/1280_boomver_1_1328841-2.jpg
Logo
Sears Real Estate
2021 Clubhouse Dr. Suite 100
Greeley CO, 80634